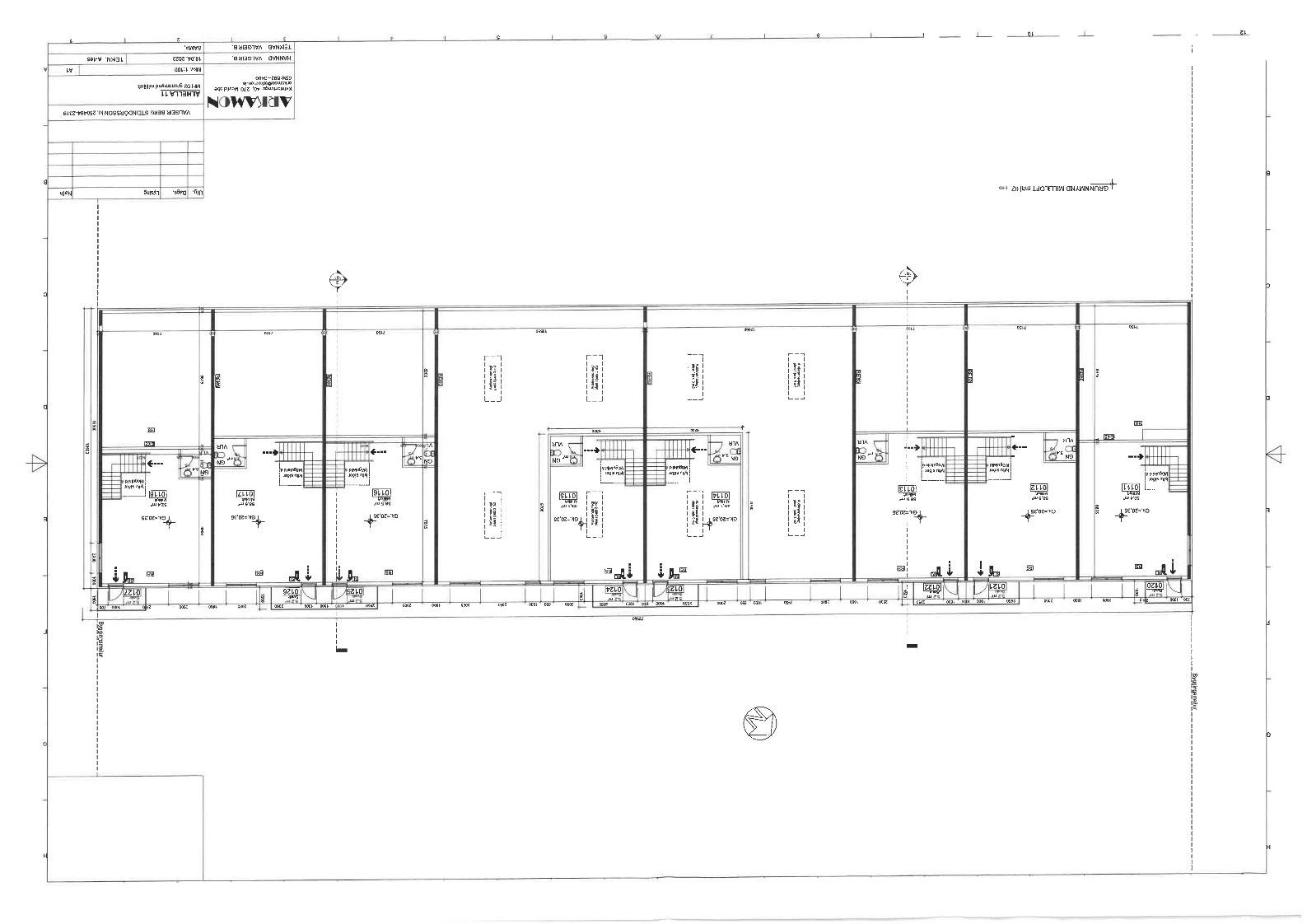
RE/MAX, Bjarný Björg Arnórsdóttir Lgf & Sveinn Gíslason Lgf kynna: Vandað og fullbúið atvinnuhúsnæði á góðum stað í Hafnafirði. Húsið er steypt og er klætt samlokueiningum á útveggjum og þaki. Húsið skiptist í 10 séreiningabil og eitt sameiginlegt inntaksrými. Bilin eru skráð sem geymsluhús með möguleika á að breyta í atvinnuhúsnæði. Samkvæmt deiluskipulagi er gert ráð fyrir grófum iðnaði á svæðinu.
Bilin eru sértaklega breið með mikilli lofthæð og hönnuð með það í huga að stórar vinnuvélar komist inn. Hver eining hefur skilgreint séreignasvæði auk sameignar á lóð skv. byggingalýsingu í samþykktum teikningum. Bilin eru með mikilli lofthæð, 7,5m í mæni, 18,5 m djúpt og 7,150m breitt (stærri bilini) 9m djúpt og 7,150m breitt (minni bilin). Innkeyrsluhurðar eru 5 x 5 m á hæð og 4 x 4m með gönguhurð að framan.
Nánari lýsing:
- Bilið er 308,5 fm. Grunnflötur er 254,4 fm og milliloft 54,1 fm. - Eignina er hægt að fá afhenta án millilofts ef kaupandi óskar eftir því í samráði við byggingaraðila. - Húsið er uppsteypt klætt með samlokueiningum frá Límtré Vírnet. - Þak er límtrésþak klætt samlokueiningum frá Límtré/Vírnet. - Gluggar og gönguhurðir eru timbur/álgluggar frá Gluggatækni. Gluggar eru glerjaðir með tvöföldu verksmiðjugleri.(K-gler) - Aksturshurðir er samlokuhurðir frá Límtré/Vírnet. Stærð innkeyrsluhurða er 5x5 m og 4x4 m á hæð. - Svalir eru steyptar með slípuðu yfirborði. Svalahandrið úr galvanhúðuðu stáli verður uppkomið og frágengið. - Olíugildra verður fullfrágengin og tengd fráveitukerfi bæjarins. - Lóð verður skilað jafnaðri og malbikaðri, með kantsteini og gróðri. Niðurföll í lóð verða fullfrágengin og tengd fráveitu bæjarins. Athygli er vakin á að lóðin er að hluta til í séreign hvers eignarhluta og að hluta til sameign allra, s.b.r. eignaskiptasamning. - Rafmagntafla í séreign verður komin en raflagnir að öðru ekki. Þó verður raflögn komin í salerni ásamt ljósakúpli. Lágmarks vinnulýsing í aðalrými. Rafmagnstafla skilast fullfrágengin skv. Teikningu og tenglar við töflu fyrir 32A,16A og tveir 13A. - Innihurðir eru yfirfeldar eikarhurðir frá Birgisson (eða samb.), uppkomnar og fullfrágengnar. - Stigi milli hæða er léttur stigi úr límtré og stáli. - Samkvæmt deiluskipulagi þá má vera með iðnað í flokki B3 í Álhellu 11. - Sér gámastæði fylgir bilinu. Sjá nánar skilalýsingu byggingaraðila.
Skipulagsgjald: Kaupandi greiðir skipulagsgjald þegar það verður lagt á. Skipulagsgjaldið er 0,3% af væntanlegu brunabótamati. ATH. VSK – kvöð er á húsnæðinu.
Gjöld sem kaupandi þarf að standa straum af vegna kaupanna: 1. Stimpilgjald af kaupsamningi - 0,8% af heildarfasteignamati hjá einstaklingum. (Sé um fyrstu kaup að ræða er stimpilgjald af kaupsamningi 0,4%) 2. Stimpilgjald af kaupsamningi - 1,6% af heildarfasteignamati hjá lögaðilum. 3. Þinglýsingargjald af kaupsamningi, veðskuldabréfi, veðleyfi o.fl. 2.700 kr. af hverju skjali. 4. Lántökugjald lánastofnunar - sjá heimasíður lánastofnanna. 5. Umsýslugjald til fasteignasölu 69.900. kr. m.vsk.
Í lögum um fasteignakaup nr. 40/2002 er kveðið á um ríka skoðunarskyldu kaupenda á fasteignum. Vill RE/MAX því skora á væntanlega kaupendur að kynna sér vel ástand fasteigna fyrir kauptilboðsgerð og leita til þar til bærra sérfræðinga um nánari skoðun.
RE/MAX, Bjarný Björg Arnórsdóttir Lgf & Sveinn Gíslason Lgf kynna: Vandað og fullbúið atvinnuhúsnæði á góðum stað í Hafnafirði. Húsið er steypt og er klætt samlokueiningum á útveggjum og þaki. Húsið skiptist í 10 séreiningabil og eitt sameiginlegt inntaksrými. Bilin eru skráð sem geymsluhús með möguleika á að breyta í atvinnuhúsnæði. Samkvæmt deiluskipulagi er gert ráð fyrir grófum iðnaði á svæðinu.
Bilin eru sértaklega breið með mikilli lofthæð og hönnuð með það í huga að stórar vinnuvélar komist inn. Hver eining hefur skilgreint séreignasvæði auk sameignar á lóð skv. byggingalýsingu í samþykktum teikningum. Bilin eru með mikilli lofthæð, 7,5m í mæni, 18,5 m djúpt og 7,150m breitt (stærri bilini) 9m djúpt og 7,150m breitt (minni bilin). Innkeyrsluhurðar eru 5 x 5 m á hæð og 4 x 4m með gönguhurð að framan.
Nánari lýsing:
- Bilið er 308,5 fm. Grunnflötur er 254,4 fm og milliloft 54,1 fm. - Eignina er hægt að fá afhenta án millilofts ef kaupandi óskar eftir því í samráði við byggingaraðila. - Húsið er uppsteypt klætt með samlokueiningum frá Límtré Vírnet. - Þak er límtrésþak klætt samlokueiningum frá Límtré/Vírnet. - Gluggar og gönguhurðir eru timbur/álgluggar frá Gluggatækni. Gluggar eru glerjaðir með tvöföldu verksmiðjugleri.(K-gler) - Aksturshurðir er samlokuhurðir frá Límtré/Vírnet. Stærð innkeyrsluhurða er 5x5 m og 4x4 m á hæð. - Svalir eru steyptar með slípuðu yfirborði. Svalahandrið úr galvanhúðuðu stáli verður uppkomið og frágengið. - Olíugildra verður fullfrágengin og tengd fráveitukerfi bæjarins. - Lóð verður skilað jafnaðri og malbikaðri, með kantsteini og gróðri. Niðurföll í lóð verða fullfrágengin og tengd fráveitu bæjarins. Athygli er vakin á að lóðin er að hluta til í séreign hvers eignarhluta og að hluta til sameign allra, s.b.r. eignaskiptasamning. - Rafmagntafla í séreign verður komin en raflagnir að öðru ekki. Þó verður raflögn komin í salerni ásamt ljósakúpli. Lágmarks vinnulýsing í aðalrými. Rafmagnstafla skilast fullfrágengin skv. Teikningu og tenglar við töflu fyrir 32A,16A og tveir 13A. - Innihurðir eru yfirfeldar eikarhurðir frá Birgisson (eða samb.), uppkomnar og fullfrágengnar. - Stigi milli hæða er léttur stigi úr límtré og stáli. - Samkvæmt deiluskipulagi þá má vera með iðnað í flokki B3 í Álhellu 11. - Sér gámastæði fylgir bilinu. Sjá nánar skilalýsingu byggingaraðila.
Skipulagsgjald: Kaupandi greiðir skipulagsgjald þegar það verður lagt á. Skipulagsgjaldið er 0,3% af væntanlegu brunabótamati. ATH. VSK – kvöð er á húsnæðinu.
Gjöld sem kaupandi þarf að standa straum af vegna kaupanna: 1. Stimpilgjald af kaupsamningi - 0,8% af heildarfasteignamati hjá einstaklingum. (Sé um fyrstu kaup að ræða er stimpilgjald af kaupsamningi 0,4%) 2. Stimpilgjald af kaupsamningi - 1,6% af heildarfasteignamati hjá lögaðilum. 3. Þinglýsingargjald af kaupsamningi, veðskuldabréfi, veðleyfi o.fl. 2.700 kr. af hverju skjali. 4. Lántökugjald lánastofnunar - sjá heimasíður lánastofnanna. 5. Umsýslugjald til fasteignasölu 69.900. kr. m.vsk.
Í lögum um fasteignakaup nr. 40/2002 er kveðið á um ríka skoðunarskyldu kaupenda á fasteignum. Vill RE/MAX því skora á væntanlega kaupendur að kynna sér vel ástand fasteigna fyrir kauptilboðsgerð og leita til þar til bærra sérfræðinga um nánari skoðun.
Öflugur fasteignaleitarvefur með einföldu og notendavænu viðmóti sem býður upp á ítarlegar upplýsingar um fasteignir, þróun verðlags og fróðleik um fasteignamarkaðinn.