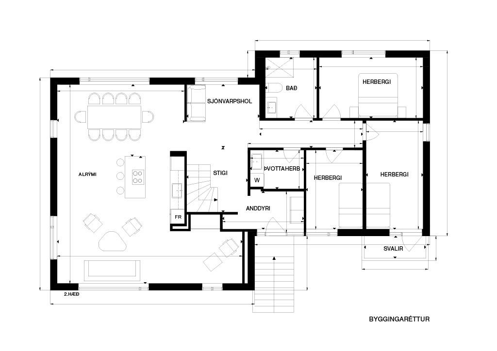
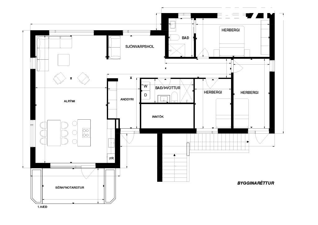
RE/MAX, Garðar Hólm lgf. og Guðlaug Jóna lgf. kynna: Einstakt tækifæri í vesturbæ Reykjavíkur Byggingarréttur þar sem byggja má stakstæða byggingu sem er allt að 510 fm, en búið er að teikna hús sem er að birtri stærð 482,3 fm með þremur íbúðum. Búið er að teikna bygginguna og fylgja teikningar með. Auðvelt aðgengi er til að byggja húsið. Frábær staðsetning innan gróins hverfis þar sem stutt er í alla þjónustu.
Bygginarréttur: Byggingarrétturinn hljóðar upp á 510 fm en búið er að teikna hús sem er birt stærð 482,3 fermetrar og skiptist hann í þrjár íbúðir.
Allar nánari upplýsingar veita: Guðlaug Jóna lgf. í síma 661-2363 eða gulla@remax.is og Garðar Hólm lgf. í síma 899-8811 eða gardar@remax.is
RE/MAX, Garðar Hólm lgf. og Guðlaug Jóna lgf. kynna: Einstakt tækifæri í vesturbæ Reykjavíkur Byggingarréttur þar sem byggja má stakstæða byggingu sem er allt að 510 fm, en búið er að teikna hús sem er að birtri stærð 482,3 fm með þremur íbúðum. Búið er að teikna bygginguna og fylgja teikningar með. Auðvelt aðgengi er til að byggja húsið. Frábær staðsetning innan gróins hverfis þar sem stutt er í alla þjónustu.
Bygginarréttur: Byggingarrétturinn hljóðar upp á 510 fm en búið er að teikna hús sem er birt stærð 482,3 fermetrar og skiptist hann í þrjár íbúðir.
Allar nánari upplýsingar veita: Guðlaug Jóna lgf. í síma 661-2363 eða gulla@remax.is og Garðar Hólm lgf. í síma 899-8811 eða gardar@remax.is
Öflugur fasteignaleitarvefur með einföldu og notendavænu viðmóti sem býður upp á ítarlegar upplýsingar um fasteignir, þróun verðlags og fróðleik um fasteignamarkaðinn.