Fasteignaleitin
Skráð 4. okt. 2024
Deila eign
Deila

Holtasmári 1

Atvinnuhúsn.Höfuðborgarsvæðið/Kópavogur-201
130 m2
Verð
Tilboð
Fasteignamat
0 kr.
Brunabótamat
0 kr.
Byggt 2001
Fasteignanúmer
2241745_1
Húsgerð
Atvinnuhúsn.
Byggingarefni
Steypt
Númer hæðar
1
Númer íbúðar
1
Matsstig
7 - Fullgerð bygging
Croisette Real Estate Partner kynnir TIL LEIGU - Holtasmári 1 .

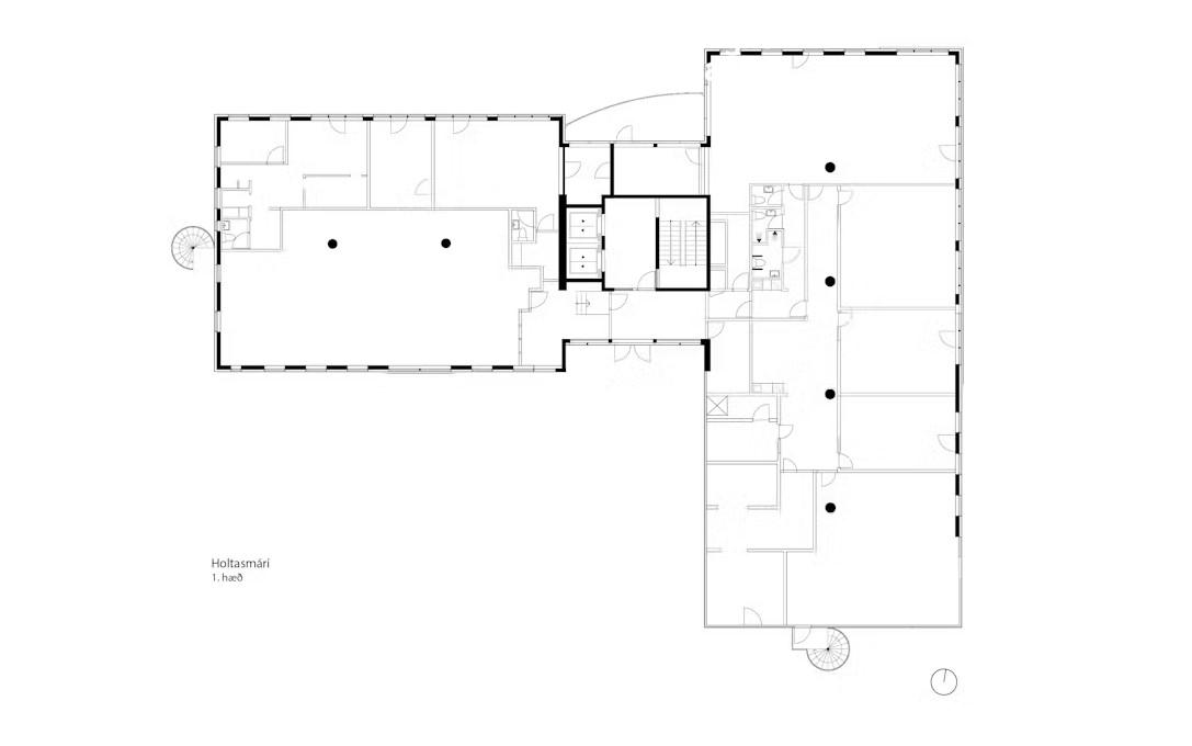
Laus til LEIGU um 920 fm skrifstofuhúsnæði á fimmtu hæð hæð byggingar með stórbrotnu útsýni til allra átta. Þá losnar fljótlega efsta hæðin í byggingunni, samtals tæplega 460 fm með stórum svölum og stórbrotnu útsýni. Eftirsótt bygging á vinsælum stað á miðju höfuðborgarsvæðinu. Eignin er vel þekkt sem Hjartaverndarhúsið. Við bygginguna, á plani úti til austurs, er fjöldi stæða fyrir viðskiptavini byggingar. Þá losnaði nýverið verslunarhúsnæði á jarðhæð byggingar, samtals um 640 fm sem möguleiki er að skipta í þrjú minni verslunar- eða skrifstofurými eins og grunnmynd hæðar sýnir. Stórir gluggar og mikill sýnileiki frá götu.


Nánari upplýsingar veitir:
 Davíð Ólafsson, Sölustjóri - atvinnueignir, í síma 766-6633
, tölvupóstur david@croisette.is.


Um skoðunar- og aðgæsluskyldu:

Í húsaleigulögum nr. 36/1994 er kveðið á um heimild aðila kalla til skoðunaraðila til úttektar á húsnæðinu fyrir afhendingu. Croisette real estare partner bendir væntanlegum leigjendum á að kynna sér vel ástand fasteigna við skoðun og fyrir tilboðsgerð og ef þurfa þykir að leita til sérfræðinga um nánari ástandsskoðun. Í tilfelli atvinnuhúsnæðis er ríkari heimild aðila að semja sig frá lögum og gildir þá ákvæði leigusamnings ef til ágreinnings kemur. 
 
Engin gögn fundust fyrir þessa eign
CROISETTE ICELAND EHF.
https://croisettehome.is

Svæðisupplýsingar

Sambærilegar eignir

Skoða eignina Sunnusmári 4
Sunnusmári.jpg
Skoða eignina Sunnusmári 4
Sunnusmári 4
201 Kópavogur
99.4 m2
Atvinnuhúsn.
12
552 þ.kr./m2
54.900.000 kr.
Skoða eignina Sunnusmári 4
Sunnusmári.jpg
Skoða eignina Sunnusmári 4
Sunnusmári 4
201 Kópavogur
99.4 m2
Atvinnuhúsn.
12
552 þ.kr./m2
54.900.000 kr.
Skoða eignina Sunnusmári 4
Skoða eignina Sunnusmári 4
Sunnusmári 4
201 Kópavogur
99.4 m2
Atvinnuhúsn.
2
552 þ.kr./m2
54.900.000 kr.
Skoða eignina Dalvegur 16a
Skoða eignina Dalvegur 16a
Dalvegur 16a
201 Kópavogur
99.4 m2
Atvinnuhúsn.
22
663 þ.kr./m2
65.900.000 kr.
Fasteignaleitin
Öflugur fasteignaleitarvefur með einföldu og notendavænu viðmóti sem býður upp á ítarlegar upplýsingar um fasteignir, þróun verðlags og fróðleik um fasteignamarkaðinn.
Hafðu samband
© Copyright 2025 - Fasteignaleitin