Fasteignaleitin
Skráð 11. des. 2025
Deila eign
Deila

Hjallavegur 40

FjölbýlishúsHöfuðborgarsvæðið/Reykjavík/Laugardalur-104
134 m2
8 Herb.
5 Svefnh.
3 Baðherb.
Verð
159.500.000 kr.
Fermetraverð
1.190.299 kr./m2
Fasteignamat
69.700.000 kr.
Brunabótamat
98.780.000 kr.
Mynd af Magnús Már Lúðvíksson
Magnús Már Lúðvíksson
Löggiltur fasteignasali
Byggt 1946
Þvottahús
Garður
Bílskúr
Margir Inng.
Fasteignanúmer
2017910
Húsgerð
Fjölbýlishús
Byggingarefni
Steypt
Númer hæðar
1
Hæðir í húsi
2
Hæðir í íbúð
1
Númer íbúðar
1
Vatnslagnir
Nýlegt
Raflagnir
Nýlegt
Frárennslislagnir
Nýlegt
Gluggar / Gler
Nýlegt
Þak
Nýlegt
Lóðarréttindi
Leigulóð
Svalir
Nei
Upphitun
Hitaveita
Inngangur
Margir inngangar
Matsstig
7 - Fullgerð bygging
Fyrirhugaðar framkvæmdir
Til upplýsinga, þá á eftir að gefa út byggingarleyfi v. Hjallaveg 40, USK USK23060098.  Erindið var samþykkt 20.ágúst 2024.
Eftir á að skrá byggingarstjóra og iðnmeistara, greiða gjöld og skila inn greinargerð hönnunarstjóra um ábyrgðarsvið hönnuða.
Skráningar fara fram á Mínar Síður hjá Reykjavíkurborg: https://reykjavik.is/minar-sidur
Leiðbeiningar liggja hjá fasteignasala - Einnig á eftir að koma staðfesting frá eignaskipatyfirlýsanda um að vinna á eignaskiptayfirlýsingu er hafin
Magnús Már Lúðvíksson Löggiltur fasteignasali og RE/MAX fasteignasala kynna:
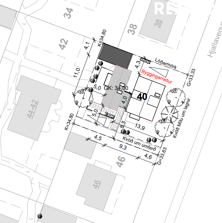
Vel skipulagðar og mikið endurnýjaðar tvær 3 herbergja íbúðir og bílskúr sem hefur verið innréttaður sem stúdíoíbúð, eignirnar eru á 2 fastanúmerum ásamt samþykkt byggingaráform að húsi á baklóð Hjallavegs 40 
Allar eignirnar eru í útleigu með leigusamninga.

Bókið skoðun hjá Magga í síma 699-2010 eða maggi@remax.is


Eftir breytingar verður skráning eigna eftirfarandi:
0101: Íbúð á 1.hæð 55,7 fm
0201: Íbúð á 2. hæð 62,7 fm
0102: Teikningar af nýju húsi (2 íbúðir) + bílskúr (stúdíóíbúð) samtals:130,4 fm
Samtals: 264,4 fm

Skráning fyrir breytingar:
Hjallavegur 40, 0101 Íbúð, 51,9 m², 020101 Bílskúr 25,6 m², 020102 Geymsla 8,0 m² = 85,5
Fasteignamat 2026: 76.500.000
Hjallavegur 40, 0201 Íbúð, 48,5 m²
Fasteignamat 2026: 54.000.000 kr.
Samtals: 134 fm

Breytingar á framhúsi Breytingar á inngöngum og þvottahúsi 1. hæðar þar sem báðar hæðir í framhúsi fá sér inngang.
Með þessum breytingum verður engin sameign sem hefur mikla þýðingu fyrir afkomu af leigu og almennan rekstrarkostnað.
Eina tenging húsanna verður forstofa byggingarinnar sem tengist vesturhlið gamla hússins. 
Nýbyggingin og allar breytingar á deiliskipulagi eru unnar af Nordic arkitektum og hafa teikningar verið samþykktar af byggingaryfirvöldum.
Núverandi áform gera ráð fyrir að nýbyggingin verði út timbri og klædd með álklæðningu.
það er kominn byggingarréttur en ekki búið að sækja um byggingarleyfi

Íbúð á 1 hæð:  Að innan verið töluvert endurnýjað og má þar nefna gólfefni, eldhúsinnréttingu og baðherbergi.
Íbúð á 2. hæð: Nýtt gips, nýtt rafmagn, nýjar neysluvatnslagnir, nýjir ofnar og ofnalagnir, parket, flísar, eldhús og innihurðar. 
Góð loftræsting í báðum íbúðum, kerfi með gegnumstreymi lofts. 
Búið er að taka húsið mikið í gegn. Allar vatnslagnir, frárennsli, dren og rafmagn. Einnig er búið að endurnýja glugga, gler, þak að hluta og þakjárn o.fl.


Bílskúrinn hefur verið endurnýjaður frá grunni. Þar er nú björt og falleg fullbúin stúdíóíbúð. Í alrými er fullbúið eldhús og stofa. Baðherbergi flísalagt í hólf og gólf, sturtuklefi og vegghengt salerni og innréttingu undir handlaug. Gólfhiti er í íbúðinni. Stúdíóbúðin deilir þvottahúsi með íbúðinni. 

Hönnun: Mjög hefur verið vandað til hönnunar og teikninga af einni bestu arkitektastofu landsins. Bæði eigendur og hönnuðir hafa lagt mikla vinnu í að nýta byggingarréttinn sem best. Auk þess mun kostnaður við bygginguna verða hagfelldur og byggingartími stuttur þar sem heimilt er að byggja úr timbri og því þarf hvorki stóra krana né önnur þung byggingartæki til framkvæmda.
Nýja húsið fær sér garð sem mun verða mjög skjólsæll. Það er einstaklega fallegt og fellur vel að bæði framhúsinu og öðru umhverfi.
Sér bílastæði verður út frá götustíg upp að nýja húsinu nr. 42. Auk þess mun innkeyrsla að framhúsinu fylgja neðri hæð hússins.

Nánari upplýsingar veitir:
Magnús Már Lúðvíksson, Löggiltur fasteignasali í síma 699-2010 eða maggi@remax.is



 
DagsetningFasteignamatKaupverðStærðFermetraverðNothæfur samningur
06/02/201366.650.000 kr.9.900.000 kr.85.5 m2115.789 kr.
Byggt á upplýsingum úr Þjóðskrá Íslands frá 2006-2025
Byggt 1972
25.6 m2
Fasteignanúmer
2017910
Byggingarefni
Holsteinn
Númer hæðar
01
Númer eignar
01
Húsmat
0 kr.
Lóðarmat
0 kr.
Fasteignamat samtals
0 kr.
Brunabótamat
11.800.000 kr.
Matsstig
7 - Fullgerð bygging
Byggt 1972
8 m2
Fasteignanúmer
2017910
Byggingarefni
Holsteinn
Númer hæðar
01
Númer eignar
02
Húsmat
0 kr.
Lóðarmat
0 kr.
Fasteignamat samtals
0 kr.
Brunabótamat
4.030.000 kr.
Matsstig
7 - Fullgerð bygging
Byggt 1946
48.5 m2
Fasteignanúmer
2017911
Byggingarefni
steypa
Númer hæðar
02
Númer eignar
01
Húsmat
41.590.000 kr.
Lóðarmat
7.860.000 kr.
Fasteignamat samtals
49.450.000 kr.
Brunabótamat
39.650.000 kr.
Matsstig
7 - Fullgerð bygging

Sambærilegar eignir

Skoða eignina Dugguvogur 13
Bílastæði
Skoða eignina Dugguvogur 13
Dugguvogur 13
104 Reykjavík
170.7 m2
Fjölbýlishús
423
849 þ.kr./m2
144.900.000 kr.
Skoða eignina Dugguvogur 1 - Íbúð 602
Bílastæði
Dugguvogur 1 - Íbúð 602
104 Reykjavík
119.2 m2
Fjölbýlishús
312
1258 þ.kr./m2
149.900.000 kr.
Skoða eignina Dugguvogur 1 íbúð 602 Þaksvalir
Bílastæði
Opið hús:13. des. kl 12:00-12:30
Dugguvogur 1 íbúð 602 Þaksvalir
104 Reykjavík
119.2 m2
Fjölbýlishús
312
1258 þ.kr./m2
149.900.000 kr.
Skoða eignina Dugguvogur 1 íb. 602
Bílastæði
Dugguvogur 1 íb. 602
104 Reykjavík
119.2 m2
Fjölbýlishús
32
1258 þ.kr./m2
149.900.000 kr.
Fasteignaleitin
Öflugur fasteignaleitarvefur með einföldu og notendavænu viðmóti sem býður upp á ítarlegar upplýsingar um fasteignir, þróun verðlags og fróðleik um fasteignamarkaðinn.
Hafðu samband
© Copyright 2025 - Fasteignaleitin