Fasteignaleitin
Skráð 29. nóv. 2025
Deila eign
Deila

Hringhamar 31 (503)

Nýbygging • FjölbýlishúsHöfuðborgarsvæðið/Hafnarfjörður-221
95.6 m2
3 Herb.
2 Svefnh.
1 Baðherb.
Verð
77.900.000 kr.
Fermetraverð
814.854 kr./m2
Fasteignamat
69.700.000 kr.
Brunabótamat
57.450.000 kr.
Sæþór Ólafsson
Lögg. fasteignasali
Byggt 2023
Lyfta
Garður
Sameig. Inng.
Fasteignanúmer
2527138
Húsgerð
Fjölbýlishús
Byggingarefni
Steypt
Númer íbúðar
10503
Vatnslagnir
Upphaflegar
Raflagnir
Upphaflegar
Svalir
1
Upphitun
Hitaveita
Inngangur
Sameiginlegur
Byggingarstig
7 - Fullgerð bygging

Miklaborg kynnir: Glæsileg svansvottuð fjölbýlishús við Hringhamar 31-33 með 2ja til 4ra herbergja íbúðum á góðum stað í hinu nýja Hamraneshverfi í Hafnarfirði. Svansvottun gerir m.a. auknar kröfur um birtuskilyrði, loftræstingu og hljóðvist.

- Sérmerkt stæði í bílakjallara fylgir flestum íbúðum. Möguleiki á rafbílahleðslu er við hvert stæði.

- Vandaðar innréttingar frá Axis og tæki frá Ormsson. Allar innréttingar og skápar ná upp í loft.

- Sérstakt loftræstikerfi í öllum íbúðum.

- Íbúðir afhendast fullbúnar en án gólfefna.

- Tilbúið til afhendingar.

Bókaðu skoðun - Sýnum samdægurs

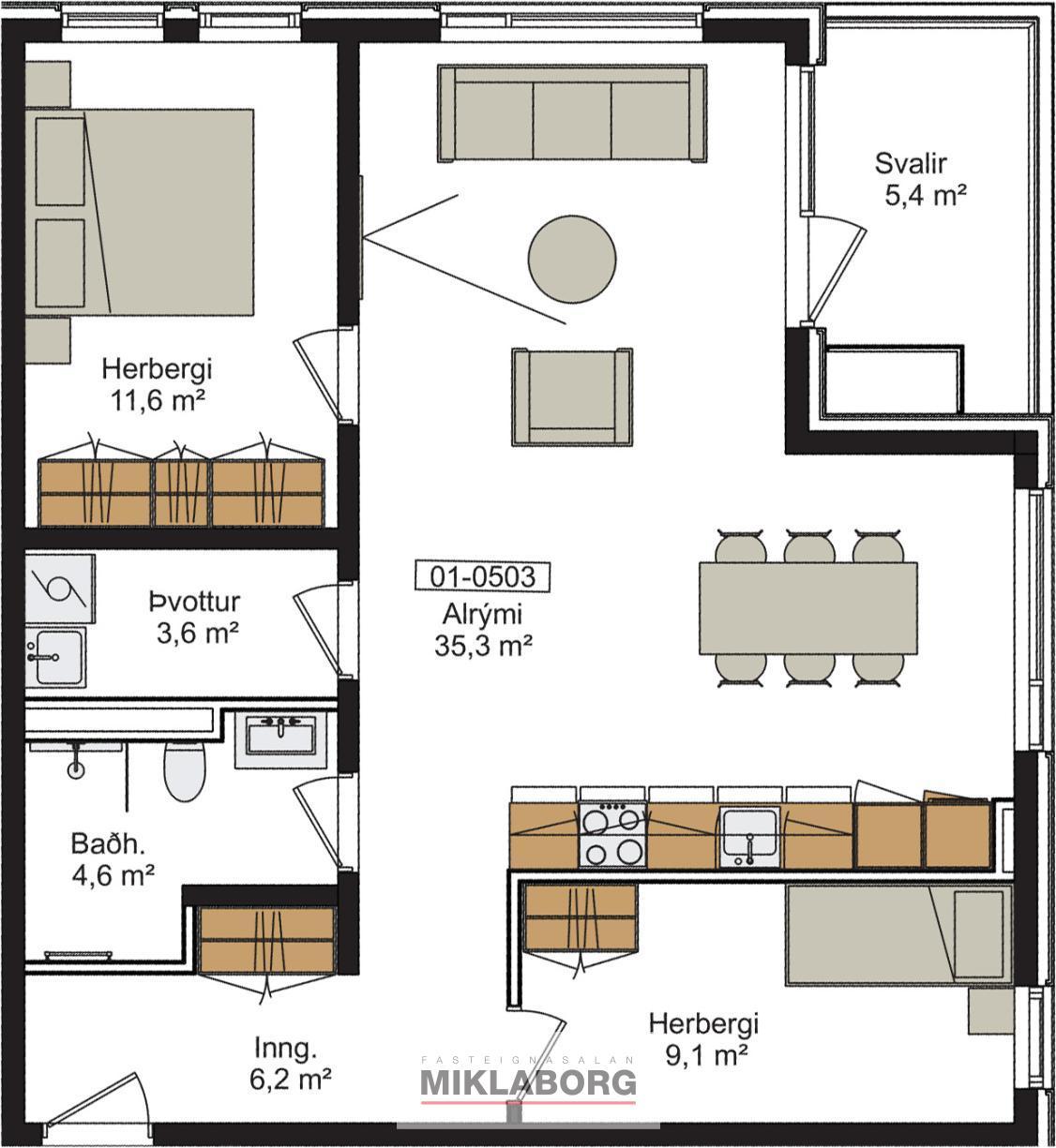
Íbúð 503 er vel skipulögð 3ja herbergja 95,6 fm íbúð á 5. hæð. Eigninni fylgir stæði merkt B23 í bílakjallara.


Nánari lýsing:

Eignin skiptist í anddyri með fataskáp. Inn af anddyri er á aðra hönd svefnherbergi með fataskáp og baðherbergi með sturtu og vandaðri innréttingu. Sér þvottahús. Rúmgott hjónaherbergi með fataskáp er inn af alrými. Eldhús er í opnu alrými sem samanstendur af borðstofu og stofu með útgengi út á svalir.

Sjá nánar á heimasíðu verkefnis


Hamraneshverfi er vel staðsett hverfi í mikilli uppbyggingu með skóla, leiksskóla og falleg útivistarsvæði í í næsta nágreni.

Byggingaraðili er Mótx ehf sem er traustur verktaki og hefur starfað óslitið frá stofnun árið 2005. Mótx hefur hlotið viðurkenningar, bæði fyrir hönnun bygginga og frágang lóða á nýbyggingarsvæðum.

 

Nánari upplýsingar veita

Sæþór Ólafsson löggiltur fasteignasali í síma 855-5550 eða saethor@miklaborg.is

Óskar Sæmann Axelsson löggiltur fasteignasali í síma 691-2312 eða osa@miklaborg.is

Stefán Jóhann Stefánsson löggitlur fasteignasali í síma 695-2634 eða stefan@miklaborg.is


Engin gögn fundust fyrir þessa eign

Sambærilegar eignir

Skoða eignina Hringhamar 35, íb. 407 Hlutd.lán
Bílastæði
Hringhamar 35, íb. 407 Hlutd.lán
221 Hafnarfjörður
100 m2
Fjölbýlishús
413
805 þ.kr./m2
80.500.000 kr.
Skoða eignina Hringhamar 37, íb. 104 Hlutd.lán
Bílastæði
Hringhamar 37, íb. 104 Hlutd.lán
221 Hafnarfjörður
112.9 m2
Fjölbýlishús
413
713 þ.kr./m2
80.500.000 kr.
Skoða eignina Hringhamar 35, íb. 206 Hlutd.lán
Bílastæði
Hringhamar 35, íb. 206 Hlutd.lán
221 Hafnarfjörður
108 m2
Fjölbýlishús
413
745 þ.kr./m2
80.500.000 kr.
Skoða eignina Baughamar 23
Opið hús:06. des. kl 12:30-13:30
Skoða eignina Baughamar 23
Baughamar 23
221 Hafnarfjörður
100.8 m2
Fjölbýlishús
413
793 þ.kr./m2
79.900.000 kr.
Fasteignaleitin
Öflugur fasteignaleitarvefur með einföldu og notendavænu viðmóti sem býður upp á ítarlegar upplýsingar um fasteignir, þróun verðlags og fróðleik um fasteignamarkaðinn.
Hafðu samband
© Copyright 2025 - Fasteignaleitin