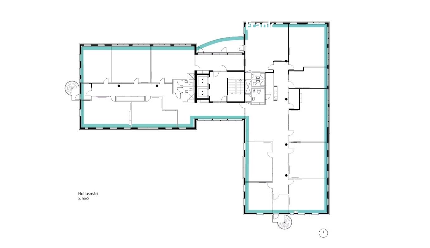
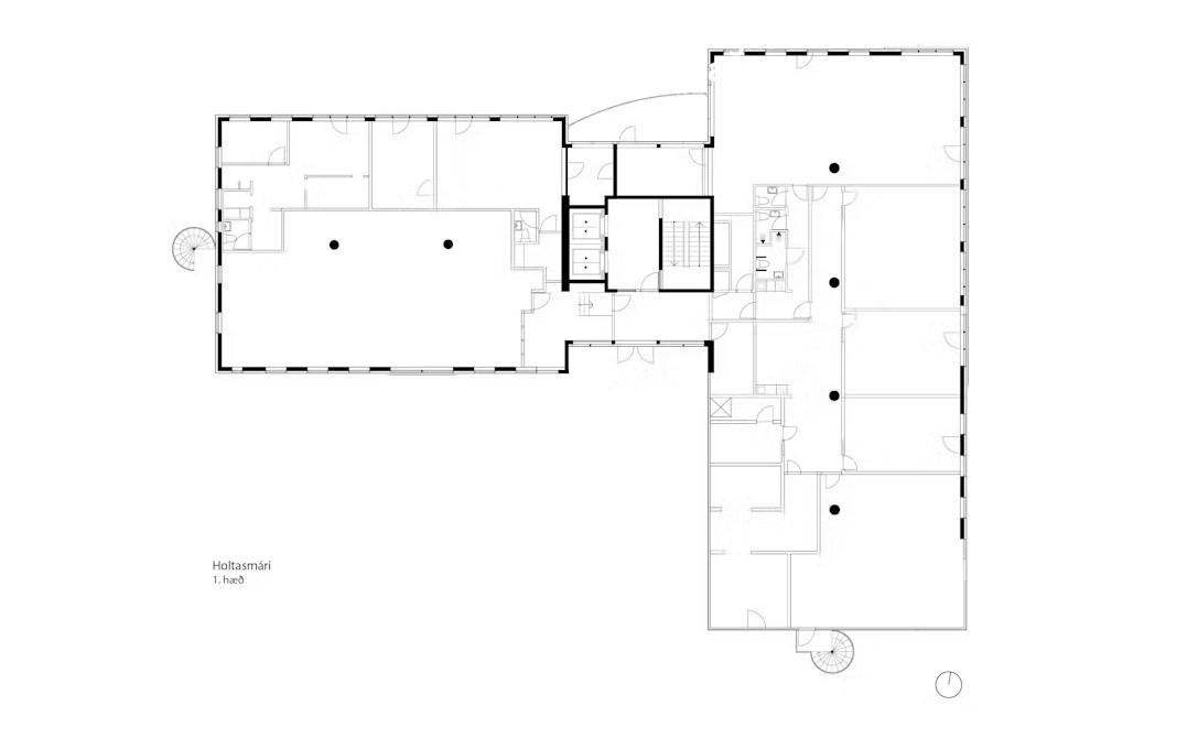
Croisette Real Estate Partner kynnir TIL LEIGU - Holtasmári 1 .
Laus til LEIGU um 920 fm skrifstofuhúsnæði á fimmtu hæð hæð byggingar með stórbrotnu útsýni til allra átta. Þá losnar fljótlega efsta hæðin í byggingunni, samtals tæplega 460 fm með stórum svölum og stórbrotnu útsýni. Eftirsótt bygging á vinsælum stað á miðju höfuðborgarsvæðinu. Eignin er vel þekkt sem Hjartaverndarhúsið. Við bygginguna, á plani úti til austurs, er fjöldi stæða fyrir viðskiptavini byggingar. Þá losnaði nýverið verslunarhúsnæði á jarðhæð byggingar, samtals um 640 fm sem möguleiki er að skipta í þrjú minni verslunar- eða skrifstofurými eins og grunnmynd hæðar sýnir. Stórir gluggar og mikill sýnileiki frá götu.
Nánari upplýsingar veitir: Styrmir Karlsson, lfs og framkvæmdastjóri í síma 899 9090 eða styrmir@croisette.is
Um skoðunar- og aðgæsluskyldu: Í húsaleigulögum nr. 36/1994 er kveðið á um heimild aðila kalla til skoðunaraðila til úttektar á húsnæðinu fyrir afhendingu. Croisette real estare partner bendir væntanlegum leigjendum á að kynna sér vel ástand fasteigna við skoðun og fyrir tilboðsgerð og ef þurfa þykir að leita til sérfræðinga um nánari ástandsskoðun. Í tilfelli atvinnuhúsnæðis er ríkari heimild aðila að semja sig frá lögum og gildir þá ákvæði leigusamnings ef til ágreinnings kemur.
Croisette Real Estate Partner kynnir TIL LEIGU - Holtasmári 1 .
Laus til LEIGU um 920 fm skrifstofuhúsnæði á fimmtu hæð hæð byggingar með stórbrotnu útsýni til allra átta. Þá losnar fljótlega efsta hæðin í byggingunni, samtals tæplega 460 fm með stórum svölum og stórbrotnu útsýni. Eftirsótt bygging á vinsælum stað á miðju höfuðborgarsvæðinu. Eignin er vel þekkt sem Hjartaverndarhúsið. Við bygginguna, á plani úti til austurs, er fjöldi stæða fyrir viðskiptavini byggingar. Þá losnaði nýverið verslunarhúsnæði á jarðhæð byggingar, samtals um 640 fm sem möguleiki er að skipta í þrjú minni verslunar- eða skrifstofurými eins og grunnmynd hæðar sýnir. Stórir gluggar og mikill sýnileiki frá götu.
Nánari upplýsingar veitir: Styrmir Karlsson, lfs og framkvæmdastjóri í síma 899 9090 eða styrmir@croisette.is
Um skoðunar- og aðgæsluskyldu: Í húsaleigulögum nr. 36/1994 er kveðið á um heimild aðila kalla til skoðunaraðila til úttektar á húsnæðinu fyrir afhendingu. Croisette real estare partner bendir væntanlegum leigjendum á að kynna sér vel ástand fasteigna við skoðun og fyrir tilboðsgerð og ef þurfa þykir að leita til sérfræðinga um nánari ástandsskoðun. Í tilfelli atvinnuhúsnæðis er ríkari heimild aðila að semja sig frá lögum og gildir þá ákvæði leigusamnings ef til ágreinnings kemur.
Öflugur fasteignaleitarvefur með einföldu og notendavænu viðmóti sem býður upp á ítarlegar upplýsingar um fasteignir, þróun verðlags og fróðleik um fasteignamarkaðinn.