Fasteignaleitin
Skráð 20. nóv. 2024

Mýrarvegur / Kaupangur

Atvinnuhúsn.Norðurland/Akureyri-600
283.2 m2
2 Herb.
Verð
92.900.000 kr.
Fermetraverð
328.037 kr./m2
Fasteignamat
41.800.000 kr.
Brunabótamat
103.800.000 kr.
SS
Sigurbjörg Sigfúsdóttir
Margir Inng.
Fasteignanúmer
2149145
Landnúmer
148915
Húsgerð
Atvinnuhúsn.
Byggingarefni
Steypt
Númer hæðar
01
Númer íbúðar
15
Lóðarréttindi
Leigulóð
Upphitun
Hitaveita - Ofnar
Inngangur
Margir inngangar
Kasa fasteignir 461-2010.

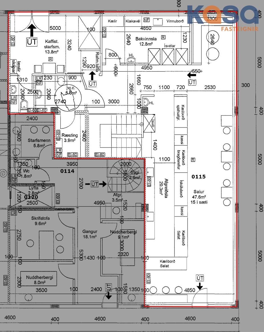
Verslunar og þjónusturými á tveimur hæðum samtals 283,2 fm í verslunarkjarnanum Kaupangi á Brekkunni. Húsnæðið hefur verið endunýjað töluvert á undanförnum árum. Á efri hæð er ísbúðin Ísgerðin og neðri hæð er ísgerð og ísframleiðsla fyrir sölu í stórmörkuðum. Mögulegt er að fá rekstur og tæki eða aðeins húsnæði.

Efri hæð: 

Vínyl parket er á hæðinni. Tvö salerni eru á hæðinni. Eldhús og lagerrými. Ræstingaherbergi/ geymsla er inn af almenningssalerni.
Baka til á efrihæð er tvöföld lagerhurð og þar er staðsett vörulyfta.

Neðri hæð: Þar er gott eldhús/framleiðslurými, þar er einnig stór göngukælir og frystiklefi, vaskar og allt sem þarf fyrir matvælaframleiðslu.
Í hinu rýminu á neðri hæðinni er lager, skrifstofurými og starfsmannaaðstaða. Rúmgott pláss og þar er vörulyftan.

Rekstur Ísgerðarinnar og framleiðsla fyrir verslanir er einnig til sölu.
- Komin er sér 3 fasa rafmagnstafla fyrir báðar hæðir.
- Góð útiaðstaða og bílastæði.
- Staðsett miðsvæðis á Brekkunni í búðarhverfi, í nágrenni við skóla og íþróttasvæði KA.
- Stór göngukælir er á neðri hæð.
- Frystiklefi á neðri hæð.
- Vörulyfta á milli hæða.
- Góð staðsetning í stóru íbúðarhverfi.

Nánari upplýsingar veita:
Helgi Steinar á helgi@kasafasteignir.is eða í síma 666-0999.
Sibba á sibba@kasafasteignir.is eða í síma 864-0054.

------------

Skoðunarskylda: 
Í lögum um fasteignakaup nr. 40/2002 er kveðið á um ríka skoðunarskyldu kaupenda á fasteignum. Kasa fasteignir benda væntanlegum kaupendum á að kynna sér vel ástand fasteigna fyrir kauptilboðsgerð og leita til þar til bærra sérfræðinga um nánari skoðun ef þurfa þykir.

Forsendur söluyfirlits: 
Söluyfirlit er samið af fasteignasala í samræmi við ákvæði laga nr. 70/2015. Þær upplýsingar sem fram koma í söluyfirliti þessu eru sóttar í opinberar skrár, til seljanda sjálfs og eftir atvikum til húsfélags. Seljandi veitir upplýsingar um eign í samræmi við upplýsingaskyldu laga um fasteignakaup nr. 40/2002. Fasteignasali sannreynir að þær upplýsingar séu réttar með sjónskoðun á eigninni. Fasteignasali getur ekki fullyrt um ástand og eiginleika þeirra hluta fasteigna sem ekki eru aðgengilegir og sjást ekki berum augum, t.d. lagnir, dren, skólp og þak. 

Gjöld sem kaupandi þarf að standa straum af vegna kaupanna:
1. Stimpilgjald sýslumanns af kaupsamningi, fyrstu kaup (0,4%), almenn kaup (0,8%), lögaðilar (1,6%) af heildarfasteignamati eignar.
2. Þinglýsingargjald af kaupsamningi, veðskuldabréfi, mögulegu veðleyfi o.fl. - kr. 2.700 af hverju skjali.
3. Lántökugjald lánastofnunar er skv. verðskrá viðkomandi lánastofnunar. Nánari upplýsingar á t.d. heimasíðu lánastofnana.
4. Umsýslugjald til fasteignasölu skv. kauptilboði.
DagsetningFasteignamatKaupverðStærðFermetraverðNothæfur samningur
21/08/201727.300.000 kr.30.000.000 kr.283.2 m2105.932 kr.
Byggt á upplýsingum úr Þjóðskrá Íslands frá 2006-2026

Myndir (26)

Sambærilegar eignir

Skoða eignina Kársnesbraut 108
Kársnesbraut 108
200 Kópavogur
90.3 m2
Fjölbýlishús
312
863 þ.kr./m2
77.900.000 kr.
Skoða eignina Hafnarbraut 18
Bílastæði
Opið hús:25. apríl kl 16:00-17:00
Skoða eignina Hafnarbraut 18
Hafnarbraut 18
200 Kópavogur
90.6 m2
Fjölbýlishús
32
1070 þ.kr./m2
96.900.000 kr.
Skoða eignina Hafnarbraut 18
Opið hús:25. apríl kl 16:00-17:00
Skoða eignina Hafnarbraut 18
Hafnarbraut 18
200 Kópavogur
77.8 m2
Fjölbýlishús
211
1027 þ.kr./m2
79.900.000 kr.
Skoða eignina Blásalir 19
Opið hús:27. apríl kl 17:00-17:30
Skoða eignina Blásalir 19
Blásalir 19
201 Kópavogur
97 m2
Fjölbýlishús
312
886 þ.kr./m2
85.900.000 kr.
Fasteignaleitin
Öflugur fasteignaleitarvefur með einföldu og notendavænu viðmóti sem býður upp á ítarlegar upplýsingar um fasteignir, þróun verðlags og fróðleik um fasteignamarkaðinn.
Hafðu samband
© Copyright 2026 - Fasteignaleitin