Fasteignaleitin
Skráð 1. des. 2025
Deila eign
Deila

Krókháls 6

Atvinnuhúsn.Höfuðborgarsvæðið/Reykjavík/Árbær-110
395 m2
1 Herb.
3 Baðherb.
Verð
Tilboð
Fasteignamat
227.550.000 kr.
Brunabótamat
436.100.000 kr.
GM
Gabríel Máni Hallson
Byggt 1987
Garður
Aðgengi fatl.
Sameig. Inng.
Fasteignanúmer
2510697
Húsgerð
Atvinnuhúsn.
Byggingarefni
Steypt
Númer íbúðar
10301
Vatnslagnir
Upphaflegar
Raflagnir
Upphaflegar
Svalir
0
Upphitun
Hitaveita
Inngangur
Sameiginlegur
Byggingarstig
7 - Fullgerð bygging

Miklaborg kynnir: Gott iðnaðarhúsnæði sem er laust strax


Nánari upplýsingar veita Þröstur Þórhallsson lögg. fasteignasali í síma 8970634 eða throstur@miklaborg.is og Gabriel Máni Hallsson lögg. fasteignasali í síma 772-2661 eða gabriel@miklaborg.is

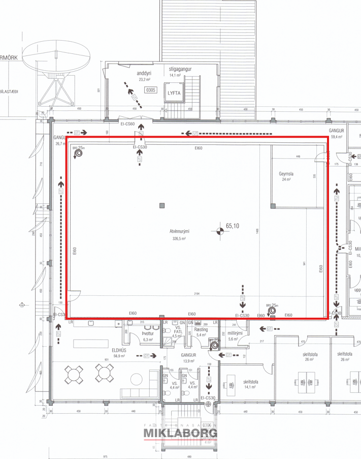
Nánari lýsing: Gengið er inn í húsnæðið inn af bílastæði sem liggur Lynghálsmegin, að aftanverðu húsinu. Við inngang er bæði venjuleg inngangshurð og bílskúrshurð en þaðan er gengið inn í stórt anddyri. Frá anddyri er hægt að ganga beint inn í salinn sem telur 326,5 fm, eða meðfram rýminu þar sem 24 fm geymsla er á vinsti hönd og sameiginlegt eldhús/þvottahús/wc eru á hægri hönd. Mikil lofthæð er í salnum sjálfum sem er með góðri lýsingu.


Nánari upplýsingar veita Þröstur Þórhallsson lögg. fasteignasali í síma 8970634 eða throstur@miklaborg.is og Gabriel Máni Hallsson lögg. fasteignasali í síma 772-2661 eða gabriel@miklaborg.is

Engin gögn fundust fyrir þessa eign

Sambærilegar eignir

Skoða eignina Höfðabakki 9a
Skoða eignina Höfðabakki 9a
Höfðabakki 9a
110 Reykjavík
343 m2
Atvinnuhúsn.
Tilboð
Skoða eignina Höfðabakki 9
Skoða eignina Höfðabakki 9
Höfðabakki 9
110 Reykjavík
453 m2
Atvinnuhúsn.
Tilboð
Skoða eignina Höfðabakki 9
Skoða eignina Höfðabakki 9
Höfðabakki 9
110 Reykjavík
420 m2
Atvinnuhúsn.
Tilboð
Skoða eignina Dvergshöfði 4
Til leigu
Skoða eignina Dvergshöfði 4
Dvergshöfði 4
110 Reykjavík
410 m2
Atvinnuhúsn.
Tilboð
Fasteignaleitin
Öflugur fasteignaleitarvefur með einföldu og notendavænu viðmóti sem býður upp á ítarlegar upplýsingar um fasteignir, þróun verðlags og fróðleik um fasteignamarkaðinn.
Hafðu samband
© Copyright 2025 - Fasteignaleitin