Fasteignaleitin
Skráð 10. apríl 2025

Bjartaland Flóahreppi

Jörð/LóðSuðurland/Selfoss-803
530,137.2 m2
3 Svefnh.
Verð
Tilboð
Fasteignamat
10.450.000 kr.
Brunabótamat
322.950.000 kr.
Mynd af Magnús Leópoldsson
Magnús Leópoldsson
http://www.fasteignamidstodin.isEignalisti
Garður
Fasteignanúmer
2323287
Landnúmer
217808
Húsgerð
Jörð/Lóð
Hæðir í húsi
1
Vatnslagnir
Nýjar
Raflagnir
Nýja
Frárennslislagnir
Nýjar
Gluggar / Gler
Þarfnast lagfæringar
Lóðarréttindi
Eignarlóð
Svalir
Þrennar svalir
Upphitun
Rafmagnskynding
Fasteignamiðstöðin er með til sölu eignina Bjartaland Flóahreppi , 803 Selfoss. Fasteignanúmer F232-3287, landeignanúmer L217808. 
Bjartaland er í Flóahreppi örstutt frá Selfossi. Afar glæsilegur húsakostur og landstærð 46,4 hektara eignarland.
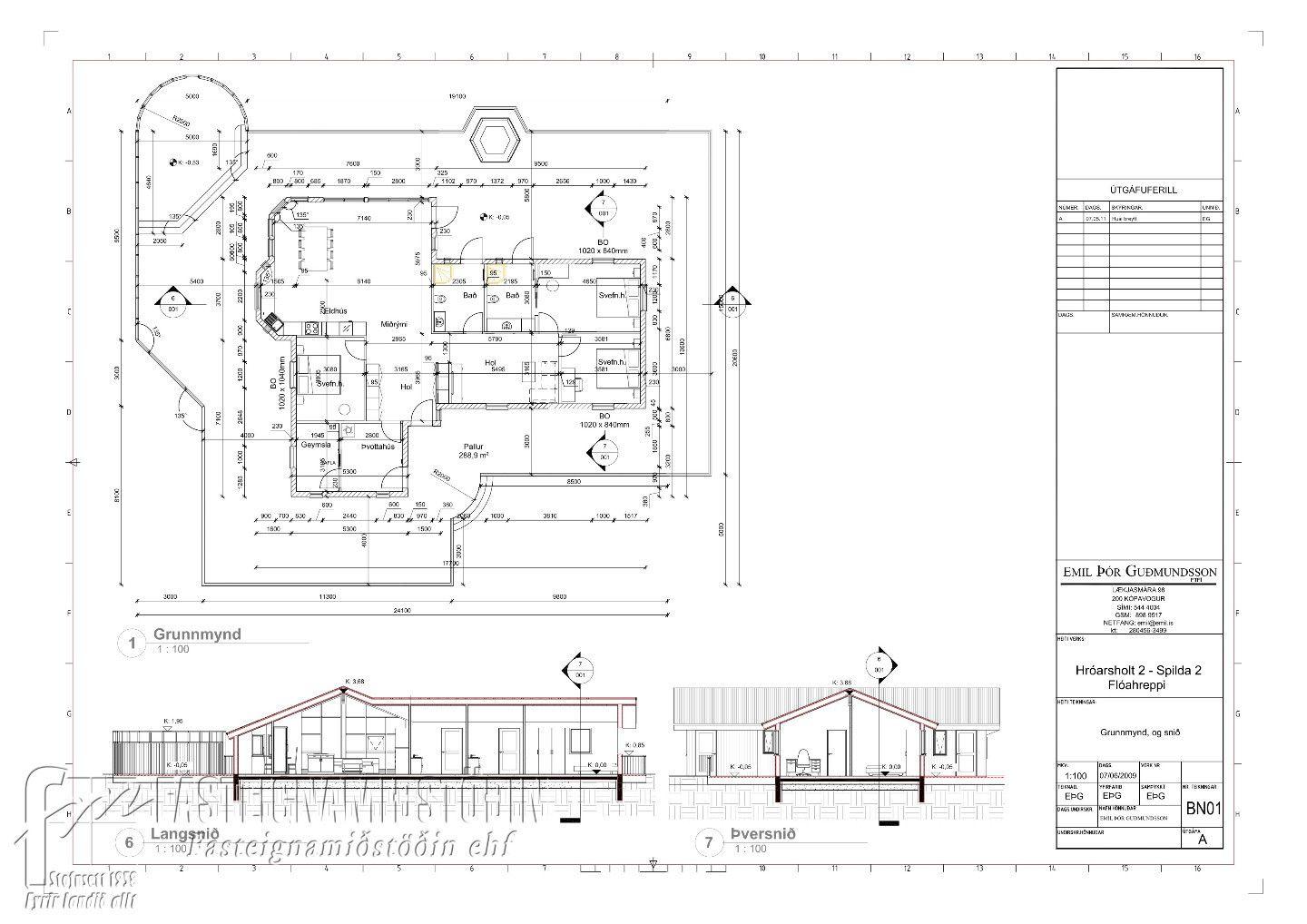
Íbúðarhús á einni hæð 158,2 m2 byggt 2010, skiptist í anddyri, stofa, eldhús, tvö góð flísalögð baðherbergi, þrjú svefnherbergi, sjónvarpshol, þvottahús og geymslu.
Glæsileg 700 m2 reiðskemma byggð 2011 og einnig 279 m2 bygging sem er skráð sem hesthús, þar er innréttuð u.þ.b 71,1 m2 gestaíbúð og um 63 m2 tækjageymsla,
u.þ.b. 68,6 fmermetra hlaða og hesthús 70,7 fermetra fyrir 10 hesta. Allt vel um gengið. Eignin er öll hin glæsilegasta enda allt nýlegt og gefur húsakostur möguleika á margs konar nýtingu ef það hentar. Sjón er sögu ríkari.
Bókið skoðun þegar ykkur hentar.

Tilvísunarnúmer: 10-2591

Nánari upplýsingar á skrifstofu Fasteignamiðstöðvarinnar, Hlíðarsmára 17 201 Kópavogi - sími: 550 3000
tölvupóstfang:  fasteignamidstodin@fasteignamidstodin.is  / leiga@fasteignamidstodin.is
Sjá einnig: fasteignamidstodin.is / jardir.is / fasteignir.is / mbl.is/fasteignir
Eftir lokun skiptiborðs:
Magnús Leópoldsson lögg. fasteignasali sími: 550 3000 og 892 6000 - tölvupóstfang magnus@fasteignamidstodin.is
Guðrún Olsen síma 550 3000 - tölvupóstfang gudrun@fasteignamidstodin.is            
María Magnúsdóttir lögfræðingur gsm: 899 5600 - tölvupóstfang maria@fasteignamidstodin.is

Gjöld sem kaupandi þarf að standa straum af vegna kaupanna:
1. Stimpilgjald af kaupsamningi - 0,4% - 0,8% hjá einstaklingum og 1,6% hjá lögaðilum af heildarfasteignamati.
2. Þinglýsingargjald af kaupsamningi, veðskuldabréfum, veðflutningsskjölum, mögulegu veðleyfi o.fl. - kr. 2.700 af hverju skjali.
3. Lántökugjald lánastofnunar - almennt 0,0 - 1,8% af höfuðstól skuldabréfs. Nánari upplýsingar á t.d. heimasíðu lánastofnana.
4. Umsýslugjald til fasteignasölu, sbr. þjónustusamning.

Forsendur söluyfirlits:
Söluyfirlit er samið af fasteignasala í samræmi við ákvæði laga nr. 70/2015. Þær upplýsingar sem fram koma í söluyfirliti þessu eru sóttar í opinberar skrár,
til seljanda sjálfs og eftir atvikum til húsfélags. Seljandi veitir upplýsingar um eign í samræmi við upplýsingaskyldu laga um fasteignakaup nr. 40/2002.
Fasteignasali sannreynir að þær upplýsingar séu réttar með sjónskoðun á eigninni. Fasteignasali getur ekki fullyrt um ástand og eiginleika þeirra hluta
fasteigna sem ekki eru aðgengilegir og sjást ekki berum augum, t.d. lagnir, dren, skólp og þak.
Engin gögn fundust fyrir þessa eign
65,000 m2
Fasteignanúmer
2323287
Húsmat
1.375.000 kr.
Lóðarmat
0 kr.
Fasteignamat samtals
1.375.000 kr.
Brunabótamat
0 kr.
Byggt 2011
700 m2
Fasteignanúmer
2323287
Byggingarefni
Stál
Númer hæðar
01
Númer eignar
01
Húsmat
43.850.000 kr.
Lóðarmat
0 kr.
Fasteignamat samtals
43.850.000 kr.
Brunabótamat
151.500.000 kr.
Byggt 2011
279 m2
Fasteignanúmer
2323287
Byggingarefni
Steypt
Númer hæðar
01
Númer eignar
01
Húsmat
25.000.000 kr.
Lóðarmat
0 kr.
Fasteignamat samtals
25.000.000 kr.
Brunabótamat
86.600.000 kr.
Byggt 2010
158.2 m2
Fasteignanúmer
2323287
Byggingarefni
Timbur
Númer hæðar
01
Númer eignar
01
Húsmat
49.650.000 kr.
Lóðarmat
0 kr.
Fasteignamat samtals
49.650.000 kr.
Brunabótamat
84.850.000 kr.

Myndir (14)

Sambærilegar eignir

Skoða eignina Þórdísarbyggð 16
Þórdísarbyggð 16
311 Borgarnes
Jörð/Lóð
8.900.000 kr.
Skoða eignina Jaðar stór íbúðalóð
Jaðar stór íbúðalóð
301 Akranes
Jörð/Lóð
22.500.000 kr.
Skoða eignina Eyri Kjós Djúpagróf 2
Eyri Kjós Djúpagróf 2
276 Mosfellsbær
10,000 m2
Jörð/Lóð
2 þ.kr./m2
22.000.000 kr.
Skoða eignina Engjavegur 14
Skoða eignina Engjavegur 14
Engjavegur 14
270 Mosfellsbær
1,830 m2
Jörð/Lóð
32 þ.kr./m2
59.000.000 kr.
Fasteignaleitin
Öflugur fasteignaleitarvefur með einföldu og notendavænu viðmóti sem býður upp á ítarlegar upplýsingar um fasteignir, þróun verðlags og fróðleik um fasteignamarkaðinn.
Hafðu samband
© Copyright 2026 - Fasteignaleitin