Fasteignaleitin
Skráð 22. júlí 2025

Hraunbrekkur 20

SumarhúsVesturland/Reykholt í Borgarfirði/Reykholt (Borgarfirði)-320
140.9 m2
6 Herb.
4 Svefnh.
1 Baðherb.
Verð
94.900.000 kr.
Fermetraverð
673.527 kr./m2
Fasteignamat
86.200.000 kr.
Brunabótamat
81.070.000 kr.
Mynd af Daníel Rúnar Eliasson
Daníel Rúnar Eliasson
Löggiltur fasteignasali
Garður
Margir Inng.
Fasteignanúmer
2284905
Landnúmer
195337
Húsgerð
Sumarhús
Byggingarefni
Timbur
Númer hæðar
01
Hæðir í húsi
2
Hæðir í íbúð
2
Númer íbúðar
01
Vatnslagnir
Upphaflegar
Raflagnir
Upphaflegar
Frárennslislagnir
Upphaflegar
Gluggar / Gler
Upphaflegt
Þak
Upphaflegt
Lóðarréttindi
Leigulóð
Svalir
Verönd m/heitum pott
Lóð
100
Upphitun
Gólfhiti hitaveita
Inngangur
Margir inngangar
Fyrirhugaðar framkvæmdir
Tveir sófar frá Casa við sjónvarp á efri hæð fylga ekki með.
HÁKOT fasteignasala og Daníel Rúnar Elíasson löggiltur fasteignasali sími: 431-4045 / 899-4045 auglýsa:

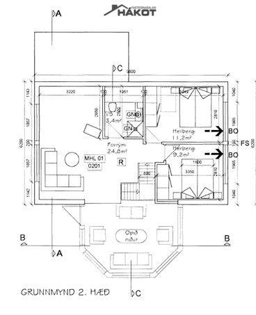
* HÚSAFELL *  HRAUNBREKKUR 20 (130.8 m²) ásamt baðhúsi (10.1 m²) = 140.9 m² á  leigulóð (1.000 m²) í landi Húsafells, Borgarbyggð.


Forstofa (flísar).
Þvottahús (flísar, hvít/ljós viður innrétting, þvottavél, frystir).
Hol (flísar).
Baðherbergi (flísar, hvít innrétting, sturta, upphengt wc, útgangur í norður).
Eldhús/borðstofa (flísar, hvít innrétting, helluborð, ofn, örbylgjuofn, uppþvottavél, ísskápur, útgangur út á Verönd í vestur).
Herbergi 1 (flísar) - Herbergi 2 (flísar).
Stofa (flísar, hátt til lofts, miklir gluggar, útgangur út á verönd).

Efri hæð:
Stigi upp frá holi (timbur þrep, gler skilrúm).
Sjónvarpshol/vinnuaðstaða (parket, undir súð, rúmgott, geymsla undir súð).
Gestawc (flísar, hvít innrétting, upphengt wc, möguleiki á sturtu, þakgluggi).
Herbergi 3 (parket) - Herbergi 4 (parket).

Geymsla (flísar, inntök, sér inmngangur á vesturhlið).
Baðhús: Hol (flísar). Sturta (flísa). Gufa (flísalögð). 

ANNAÐ: Heitur og kaldur pottur á stórri verönd. Hellulagt meðfram húsi að hluta (hiti). Nýleg stýring á gólfhita. Kommóður í herbergjum. Gólfhiti. Slétt tún við verönd, mill gróður í kringum lóðina. Allt innbú nema persónmulegir hlutir fylgja með.Heilsárs sumarhús í fallegu rjóðri í Húsafellsskógi til sölu

Lóðarleiga kr.        (2025)
Fasteignagjöld kr. 341.411 (2025)
Hitaveita ca. kr. 12.300 pr. mán (2025)
Ljósleiðari kr. 8.500 pr. mán (2025)

Húsafell er meðal fjölsóttustu ferðamannastaða hér á landi, enda einstök náttúruperla í stórkostlegu landslagi. Veðursældin, skógurinn, heitar laugar og sú aðstaða og þjónusta fyrir ferðamenn, sem þar hefur verið komið upp á undanförnum árum, laðar til sín fjölda ferðamanna og dvalargesta á hverju ári.
Hótel, golfvöllur, sundlaug (tekin í gegn 2022/2023) og bistró í göngufæri. Nýtt og glæsilegt gönguleiðakort með merktum gönguleiðum. 
Fjarlægð frá Reykjavík er 130 kílómetrar. Öll helsta þjónusta er á staðnum, hótel, veitingastaður, strandblakvöllur, sundlaug og þjónustumiðstöð. Á svæðinu eru sérlega fallegar gönguleiðir og stutt í náttúruperlur eins og Langjökul, Arnarvatnsheiði, Barnafossa og einnig er á staðnum 9 holu glæsilegur golfvöllur. Á sumrin er kvöldskemmtun með varðeld og lifandi tónlist á laugardagskvöldum. Á svæðinu er glæsilegt tjaldstæði með aðgangi að sturtum, salerni, þvottahúsi og rafmagni. Húsafell er paradís fyrir sumarbústaðaeigendur jafn á sumrin og veturnar. Stutt upp á jökul, góðar gönguleiðir, sundlaug, golfvöllur, veitingarstaður, verslun o.fl. 
Hægt er að skoða vefsíðu Húsafells á http://www.husafell.is, þar eru upplýsingar um svæðið. 

Allar upplýsingar í söluyfirlitinu eru fengnar hjá seljendum og úr opinberum gögnum.
DagsetningFasteignamatKaupverðStærðFermetraverðNothæfur samningur
05/03/201223.470.000 kr.148.000.000 kr.11047.7 m213.396 kr.Nei
Byggt á upplýsingum úr Þjóðskrá Íslands frá 2006-2026
Byggt 2008
10.1 m2
Fasteignanúmer
2284905
Byggingarefni
Timbur
Númer hæðar
01
Númer eignar
01
Húsmat
0 kr.
Lóðarmat
0 kr.
Fasteignamat samtals
0 kr.
Brunabótamat
5.170.000 kr.

Myndir (38)

Sambærilegar eignir

Skoða eignina Skyggnisvegur 13
31.jpg
Skoða eignina Skyggnisvegur 13
Skyggnisvegur 13
806 Selfoss
89.6 m2
Sumarhús
413
445 þ.kr./m2
39.900.000 kr.
Skoða eignina Þorrasalir 7
Jón Rafn_vefur.png
Skoða eignina Þorrasalir 7
Þorrasalir 7
201 Kópavogur
95.5 m2
Fjölbýlishús
312
836 þ.kr./m2
79.800.000 kr.
Skoða eignina Laugavegur 170 314
Bílastæði
Opið hús:25. apríl kl 13:00-14:00
Laugavegur 170 314
105 Reykjavík
80.1 m2
Fjölbýlishús
312
1060 þ.kr./m2
84.900.000 kr.
Skoða eignina Dúfnahólar 2
Bílskúr
Opið hús:29. apríl kl 18:30-19:00
Skoða eignina Dúfnahólar 2
Dúfnahólar 2
111 Reykjavík
122 m2
Fjölbýlishús
514
639 þ.kr./m2
77.900.000 kr.
Fasteignaleitin
Öflugur fasteignaleitarvefur með einföldu og notendavænu viðmóti sem býður upp á ítarlegar upplýsingar um fasteignir, þróun verðlags og fróðleik um fasteignamarkaðinn.
Hafðu samband
© Copyright 2026 - Fasteignaleitin