Fasteignaleitin
Skráð 28. feb. 2025

Katrínartún 2

Atvinnuhúsn.Höfuðborgarsvæðið/Reykjavík/Austurbær-105
1,882 m2
Verð
Tilboð
Mynd af Halldór Már Sverrisson
Halldór Már Sverrisson
Fasteignanúmer
23042293
Húsgerð
Atvinnuhúsn.
Númer hæðar
0
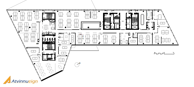
Atvinnueign kynnir til leigu: 1882 fm í einu glæsilegasta skrifstofurými á höfuðborgarsvæðinu. Um er að ræða 3. hæð í Katrínartúni 2, nánar tiltekið Höfðatorgi. Gæðin í rýminu eru einstök og má þar horfa til lofthæðar, ljósmagns, útsýnis, hljóðvistar, aðgangsstýringar, loftgæða o.s.frv. Möguleiki er að fá rými á jarðhæð samhliða. Laust eftir samkomulagi. VSK bætist við leiguverð. 

Rýmið er samblanda af opnu vinnurými, lokuðum skrifstofum og fundarherbergjum. Góð kaffi- og eldhúsaðstaða er einnig til staðar. Veitingaþjónusta á jarðhæð þar sem boðið er upp á ferskt og fjölbreytt hádegishlaðborð alla virka daga.

Gott aðgengi, innangengt er niður í bílakjallara með 1.300 bílastæðum, hleðslustöðvum, hjólageymslum og þvottastöð.Möguleiki er að takmarka aðgengi að rýminu með aðgangsstýringu í lyftu, fer allt eftir óskum og þörfum leigutaka. 

Frábær staðsetning í einu helsta viðskiptahverfi Reykjavíkur þar sem fjöldi fólks starfar innan kjarna og í göngufjarlægð. Góðar samgöngur liggja að húsinu og öll þjónusta og veitingastaðir í næsta nágrenni
.
Nánari upplýsingar veita:
Ólafur Ingi Guðmundsson, löggiltur fasteignasali og leigumiðlari, í síma 847-7700 eða olafur@atvinnueign.is 
Sigursteinn Stefánsson, viðskiptafræðingur og aðstoðarmaður fasteignasala í síma 860 5415 eða sigursteinn@atvinnueign.is

Á vefsíðu okkar getur þú fundið fleiri eignir sem og kynnt þér þjónustu Atvinnueignar ehf, www.atvinnueign.is

                   - Atvinnueignir eru okkar fag -
Engin gögn fundust fyrir þessa eign

Myndir (13)

Sambærilegar eignir

Skoða eignina Hallgerðargata 3 íb. 501
Hallgerðargata 3 íb. 501
105 Reykjavík
61.8 m2
Fjölbýlishús
211
1212 þ.kr./m2
74.900.000 kr.
Skoða eignina Bríetartún 14
Opið hús:07. apríl kl 17:45-18:15
Skoða eignina Bríetartún 14
Bríetartún 14
105 Reykjavík
81.8 m2
Fjölbýlishús
311
842 þ.kr./m2
68.900.000 kr.
Skoða eignina Drápuhlíð 47
Skoða eignina Drápuhlíð 47
Drápuhlíð 47
105 Reykjavík
87.3 m2
Tví/Þrí/Fjórbýli
312
847 þ.kr./m2
73.900.000 kr.
Skoða eignina Borgartún 24
Skoða eignina Borgartún 24
Borgartún 24
105 Reykjavík
79 m2
Fjölbýlishús
312
1049 þ.kr./m2
82.900.000 kr.
Fasteignaleitin
Öflugur fasteignaleitarvefur með einföldu og notendavænu viðmóti sem býður upp á ítarlegar upplýsingar um fasteignir, þróun verðlags og fróðleik um fasteignamarkaðinn.
Hafðu samband
© Copyright 2026 - Fasteignaleitin