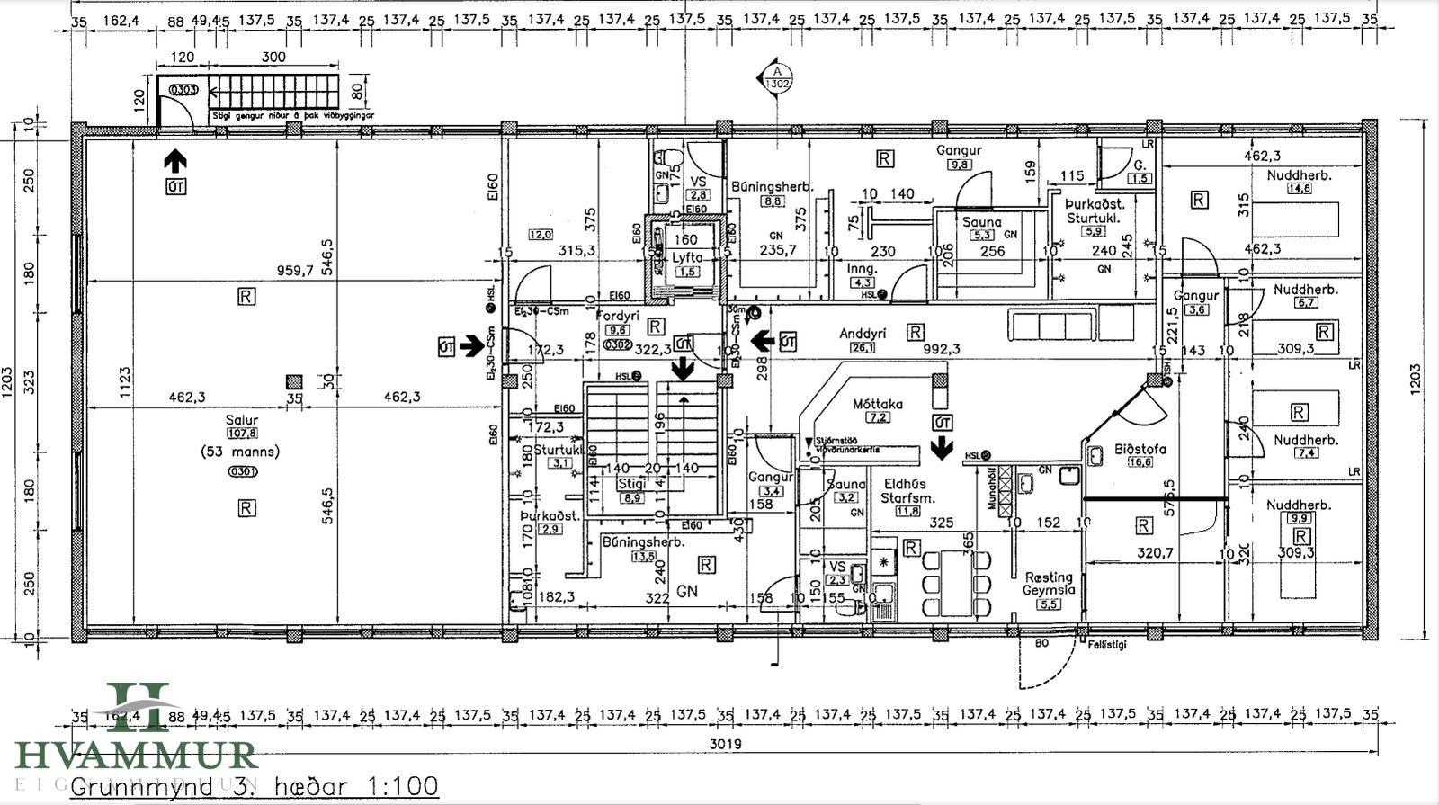
Tryggvabraut 22 eignarhluti 301 - Um er að ræða 3ju hæðina í húsinu (efstu) sem í er rekin líkamsræktarstöð - stærð 333,0 m²
Hæðin skiptist í æfingarsal, móttöku, tvo búningsklefa með sauna, eldhús/starfsmannaðastöðu og þvottaaðstöðu, þrjár skrifstofur og geymslu.
Æfingarsalurinn er skráður tæplega 110 m² og með góðum gluggum til bæði norðurs og suðurs og hurð út til suðurs, þaðan liggur stigi niður á þak viðbyggingar. Móttakan er með harð parketi á gólfi og afgreiðsluborði. Úr móttökunni er gengið inn í biðstofu og þar eru tvær skrifstofur. Búningsklefarnir eru tveir, báðir með flísum á gólfum, snyrtingu, sturtum og sauna. Eldhús/starfsmannaðastaða er með parket flísum á gólfi og hvítri innréttingu. Fyrir innan er þvottaaðstaða með dúk á gólfi og ljósri innréttingu. Gengið er inn í skrifstofu af stigapallinum, þar er harð parket á gólfi.
Annað - Nýlegt harð parket er hluta rýma. - Verið er að endurnýja opnanleg fög og mun seljandi greiða allan kostnað vegna þess. - Ný lyfta sett í húsið árið 2016 og húsið málað að utan sumarið 2017. - Sameignin lítur vel út og nýleg voru gólfefni endurnýjuð á jarðhæðinni, málað og sett upp ný lýsing. - Sér mælir fyrir rafmagn - Sér mælir fyrir hitaveitu - Eignin er í leigu, tímabundinn samningur til 28.2.2028
Um skoðunar- og aðgæsluskyldu: Í lögum um fasteignakaup nr. 40/2002 er kveðið á um ríka skoðunarskyldu kaupenda á fasteignum. Fasteignasalan Hvammur skorar því á væntanlega kaupendur að kynna sér vel ástand fasteigna fyrir kauptilboðsgerð og leita til þar til bærra sérfræðinga um nánari skoðun ef með þarf. Forsendur söluyfirlits: Söluyfirlit er samið af fasteignasala í samræmi við ákvæði laga nr. 70/2015. Þær upplýsingar sem fram koma í söluyfirliti þessu eru sóttar í opinberar skrár, til seljanda sjálfs og eftir atvikum til húsfélags. Seljandi veitir upplýsingar um eign í samræmi við upplýsingaskyldu laga um fasteignakaup nr. 40/2002. Fasteignasali sannreynir að þær upplýsingar séu réttar með sjónskoðun á eigninni. Fasteignasali getur ekki fullyrt um ástand og eiginleika þeirra hluta fasteigna sem ekki eru aðgengilegir og sjást ekki berum augum, t.d. lagnir, dren, skólp og þak.
Upprunalegir - verið er að endurnýja opnanleg fög og mun seljandi greiða allan kostnað vegna þess.
Þak
Þak lak árið 2023 en var lagað.
Lóðarréttindi
Leigulóð
Upphitun
Hitaveita, sér mælir
Inngangur
Sameiginlegur
Byggingarstig
7 - Fullgerð bygging
Matsstig
7 - Fullgerð bygging
Fyrirhugaðar framkvæmdir
Drög að nýjum eignaskiptasamningi eru í vinnslu þar sem efstu hæðinni er skipt upp í tvö fastanúmer. Seljandi mun greiða allan kostnað eignar vegna þess.
Gallar
Þak lak árið 2023 en var lagað. Hefur verið rætt í húsfélaginu að leggja nýtt lag af pappa yfir.
Fasteignasalan Hvammur 466 1600
Tryggvabraut 22 eignarhluti 301 - Um er að ræða 3ju hæðina í húsinu (efstu) sem í er rekin líkamsræktarstöð - stærð 333,0 m²
Hæðin skiptist í æfingarsal, móttöku, tvo búningsklefa með sauna, eldhús/starfsmannaðastöðu og þvottaaðstöðu, þrjár skrifstofur og geymslu.
Æfingarsalurinn er skráður tæplega 110 m² og með góðum gluggum til bæði norðurs og suðurs og hurð út til suðurs, þaðan liggur stigi niður á þak viðbyggingar. Móttakan er með harð parketi á gólfi og afgreiðsluborði. Úr móttökunni er gengið inn í biðstofu og þar eru tvær skrifstofur. Búningsklefarnir eru tveir, báðir með flísum á gólfum, snyrtingu, sturtum og sauna. Eldhús/starfsmannaðastaða er með parket flísum á gólfi og hvítri innréttingu. Fyrir innan er þvottaaðstaða með dúk á gólfi og ljósri innréttingu. Gengið er inn í skrifstofu af stigapallinum, þar er harð parket á gólfi.
Annað - Nýlegt harð parket er hluta rýma. - Verið er að endurnýja opnanleg fög og mun seljandi greiða allan kostnað vegna þess. - Ný lyfta sett í húsið árið 2016 og húsið málað að utan sumarið 2017. - Sameignin lítur vel út og nýleg voru gólfefni endurnýjuð á jarðhæðinni, málað og sett upp ný lýsing. - Sér mælir fyrir rafmagn - Sér mælir fyrir hitaveitu - Eignin er í leigu, tímabundinn samningur til 28.2.2028
Um skoðunar- og aðgæsluskyldu: Í lögum um fasteignakaup nr. 40/2002 er kveðið á um ríka skoðunarskyldu kaupenda á fasteignum. Fasteignasalan Hvammur skorar því á væntanlega kaupendur að kynna sér vel ástand fasteigna fyrir kauptilboðsgerð og leita til þar til bærra sérfræðinga um nánari skoðun ef með þarf. Forsendur söluyfirlits: Söluyfirlit er samið af fasteignasala í samræmi við ákvæði laga nr. 70/2015. Þær upplýsingar sem fram koma í söluyfirliti þessu eru sóttar í opinberar skrár, til seljanda sjálfs og eftir atvikum til húsfélags. Seljandi veitir upplýsingar um eign í samræmi við upplýsingaskyldu laga um fasteignakaup nr. 40/2002. Fasteignasali sannreynir að þær upplýsingar séu réttar með sjónskoðun á eigninni. Fasteignasali getur ekki fullyrt um ástand og eiginleika þeirra hluta fasteigna sem ekki eru aðgengilegir og sjást ekki berum augum, t.d. lagnir, dren, skólp og þak.
Dagsetning
Fasteignamat
Kaupverð
Stærð
Fermetraverð
Nothæfur samningur
04/05/2023
53.850.000 kr.
69.500.000 kr.
333 m2
208.708 kr.
Já
Byggt á upplýsingum úr Þjóðskrá Íslands frá 2006-2026
Öflugur fasteignaleitarvefur með einföldu og notendavænu viðmóti sem býður upp á ítarlegar upplýsingar um fasteignir, þróun verðlags og fróðleik um fasteignamarkaðinn.