Fasteignaleitin
Skráð 12. júlí 2024

Aðalstræti 50

Jörð/LóðVestfirðir/Þingeyri-470
Verð
6.900.000 kr.
Fasteignamat
1.890.000 kr.
Fasteignanúmer
2336646
Landnúmer
206816
Húsgerð
Jörð/Lóð
Lóðarréttindi
Leigulóð
Lóð
100
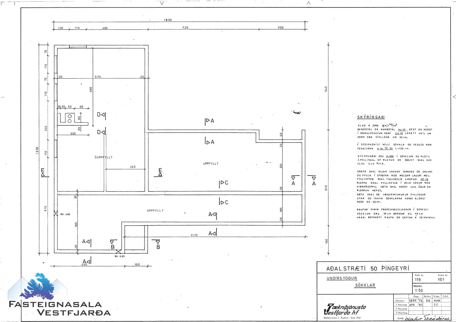
Fasteignasala Vestfjarða s. 4563244 - eignir@fsv.is - www.fsv.is- kynnir til sölu - Aðalstræti 50 Þingeyri - Steyptur sökkull og grunnur - byggingarlóð - 810 m² leigulóð á mjög góðum útsýnisstað rétt við Svalvogaveginn og sjávarsíðuna á Þingeyri. 

Sökkull er líklega um það bil 140 m² að flatarmáli skv. þeim teikningum sem liggja fyrir, þó er gerður fyrirvari um fyrirliggjandi teikningar og ástand enda hefur eignin legið ósnert í lengri tíma. Lóðarleigusamningur var gerður árið 2006 og gildir í 99 ár.

 
Engin gögn fundust fyrir þessa eign
Fasteignasala Vestfjarða
fsv.is

Myndir (6)

Sambærilegar eignir

Skoða eignina Hvítárbyggð lóð
Hvítárbyggð lóð
801 Selfoss
11,397.5 m2
Jörð/Lóð
1 þ.kr./m2
15.900.000 kr.
Skoða eignina Skeiðakur 3
Skoða eignina Skeiðakur 3
Skeiðakur 3
210 Garðabær
Jörð/Lóð
100.000.000 kr.
Skoða eignina Mánabakki 2
Skoða eignina Mánabakki 2
Mánabakki 2
805 Selfoss
8,020 m2
Jörð/Lóð
3 þ.kr./m2
24.000.000 kr.
Skoða eignina Skógarhlíð 1
Skoða eignina Skógarhlíð 1
Skógarhlíð 1
806 Selfoss
6,370 m2
Jörð/Lóð
1 þ.kr./m2
7.700.000 kr.
Fasteignaleitin
Öflugur fasteignaleitarvefur með einföldu og notendavænu viðmóti sem býður upp á ítarlegar upplýsingar um fasteignir, þróun verðlags og fróðleik um fasteignamarkaðinn.
Hafðu samband
© Copyright 2026 - Fasteignaleitin