Fasteignaleitin
Opið hús:07. des. kl 13:00-13:30
Skráð 3. des. 2025
Deila eign
Deila

Hrafnaborg 7 B

RaðhúsSuðurnes/Vogar-190
119.6 m2
4 Herb.
3 Svefnh.
2 Baðherb.
Verð
74.900.000 kr.
Fermetraverð
626.254 kr./m2
Fasteignamat
41.150.000 kr.
Brunabótamat
0 kr.
Mynd af Andri Freyr Halldórsson
Andri Freyr Halldórsson
Löggiltur fasteignasali
Byggt 2024
Garður
Gæludýr leyfð
Aðgengi fatl.
Sérinng.
Fasteignanúmer
2531589
Húsgerð
Raðhús
Byggingarefni
Timbur
Númer hæðar
1
Hæðir í húsi
1
Númer íbúðar
2
Vatnslagnir
Nýbygging
Raflagnir
Nýbygging
Frárennslislagnir
Nýbygging
Gluggar / Gler
Nýbygging
Þak
Nýbygging
Lóðarréttindi
Leigulóð
Upphitun
Hitaveita.
Inngangur
Sérinngangur
Matsstig
4 - Fokheld bygging
LIND Fasteignasala, Andri Freyr Halldórsson lgfs. lgfs kynna til sölu:
Nýtt, bjart, fallegt & vel skipulagt 4 herbergja raðhús á einni hæð með tveimur baðherbergjum við Hrafnaborg 7 B, Vogum. 
Í húsinu er hiti í gólfum, sem er með wifi stýringu. Eldhús kemur með öllum tækjum þ.e.a.s. uppþvottavél, ísskáp, bakaraofni, helluborði og örbylgjuofni.

Allar nánari upplýsingar veita:
Páll Konráð Pálsson, löggiltur fasteignasali, í síma 820-9322 eða pall@fastlind.is
Atli Karl Pálmason, löggiltur fasteignasali, í síma 662-4252 eða atli@fastlind.is
Andri Freyr Halldórsson, löggiltur fasteignasali, í síma 762-6162 eða andri@fastlind.is


*3 Svefnherbergi.
*Gólfsíðir gluggar í alrými.
*Hiti í gólfum.
*Aukin lofthæð.
*Eldhústæki fylgja.


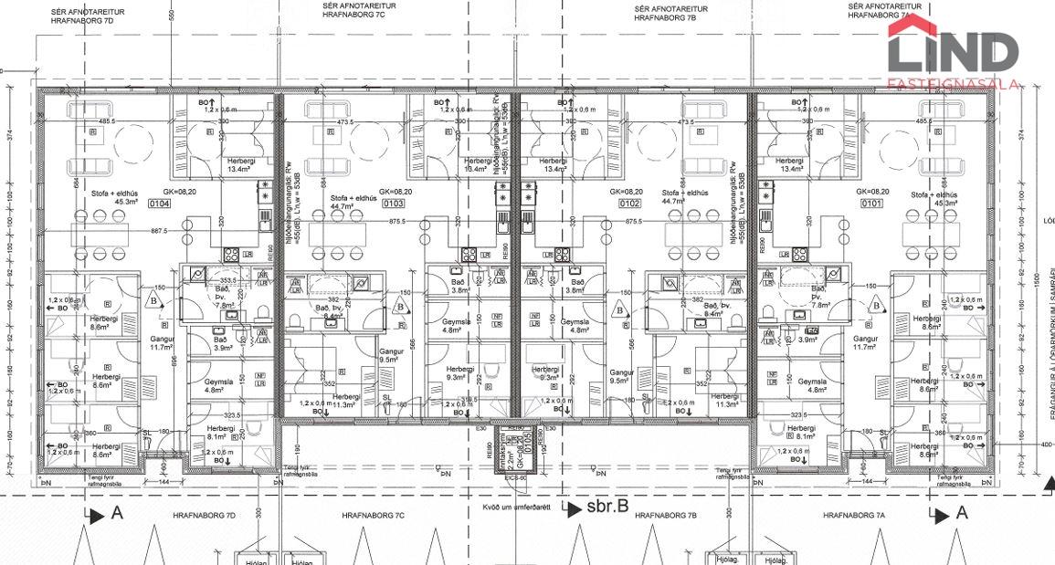
Skráð stærð eignar skv. FMR er 119,6 fm, ath. geymsluskúr að framan er ekki inn í fermetrum. 
Eignin skilast fullbúin og er til afhendingar við kaupsamning. 


Eignin skiptist í:
Forstofu, þrjú svefnherbergi, eldhús, stofu/borðstofu, tvö baðherbergi og geymslu.


Nánari lýsing eignar:
Anddyri: með fataskáp.
Stofa & borðstofa: eru samliggjandi. Rýmið er með aukinni lofthæð, bjart og rúmgott og er samlyggjandi með eldhúsi. 
-Útgengt er úr stofu út á sérafnotareit, viðarpallur og gert er ráð fyrir heitum potti.
Eldhús: er með hvítri innréttingu með svartri borðblötu með vaski. Innbyggðum ísskáp, uppþvottavél, bakaraofni í vinnuhæð og örbylgjuofni. Spanhelluborð með veggháf fyrir ofan. 
Baðherbergi 1: er flísalagt hólf í gólf. Hvít, upphengd innrétting með vaski. "Walk-in" sturta með glerþili, upphengt salerni & baðkari. Tengi er fyrir þvottavél og þurrkara.
Baðherbergi 2: er flísalagt hólf í gólf. Hvít, upphengd innrétting með vaski. "Walk-in" sturta með glerþili, upphengt salerni.
Hjónaherbergi: bjart & rúmgott, með góðum fataskáp.
Svefnherbergi 1: með fataskáp og výnilparketi á gólfi.
Svefnherbergi 2: með fataskáp og výnilparketi á gólfi.
Geymsla: er inn af gangi. Blöndunartæki fyrir heitan pott eru staðsett í geymslu.
Verönd & garður: viðar pallur þar sem hefur verið gert ráð fyrir heitum potti.
Hjóla-/geymsluskúr: er ekki inni í skráðum fermetrum.
Malbikuð bílastæði fyrir framan hús
Lóð skilast með hellulögn að framan og verönd.


Gólfefni í alrými og svefnherbergjum er výnilparket. Í votrýmum eru ljósar 60x60 flísar.

-Húsið er klætt með álklæðningu og er því viðhaldslítið.

Hér má sjá hverfið og skipulagið: https://graenabyggd.is/


*Ath. myndir geta verið af annarri íbúð og eru aðeins til viðmiðunar. 

Allar nánari upplýsingar veita:
Páll Konráð Pálsson, löggiltur fasteignasali, í síma 820-9322 eða pall@fastlind.is
Andri Freyr Halldórsson, löggiltur fasteignasali, í síma 762-6162 eða andri@fastlind.is
Atli Karl Pálmasson, löggiltur fasteignasali, í síma 662-4252 eða atli@fastlind.is



Kostnaður kaupanda vegna kaupa:  Stimpilgjald kaupsamnings einstaklinga  er  0,8%  og lögaðila  1,6% af fasteignamati eignar. Lántökugjald getur verið breytilegt eftir lánastofnunum,  oftast 1%. Þinglýsingargjald er 2.700 fyrir hvert skjal. Þjónustu- og umsýslugjald til fasteignasölu skv. kauptilboði.

Um skoðunar- og aðgæsluskyldu: Í lögum um fasteignakaup nr. 40/2002 er kveðið á um ríka skoðunarskyldu kaupenda á fasteignum. Lind fasteignasala bendir öllum sem hugsa sér að kaupa, að kynna sér vel ástand fasteignarinnar við skoðun fyrir tilboðsgerð og leita til sérfræðinga um nánari ástandsskoðun ef þörf þykir.

Forsendur söluyfirlits: Söluyfirlit er samið af fasteignasala í samræmi við ákvæði laga nr. 70/2015. Þær upplýsingar sem fram koma í söluyfirliti þessu eru sóttar í opinberar skrár, til seljanda sjálfs og eftir atvikum til húsfélags. Seljandi veitir upplýsingar um eign í samræmi við upplýsingaskyldu laga um fasteignakaup nr. 40/2002. Fasteignasali sannreynir að þær upplýsingar séu réttar með sjónskoðun á eigninni. Fasteignasali getur ekki fullyrt um ástand og eiginleika þeirra hluta fasteigna sem ekki eru aðgengilegir og sjást ekki berum augum, t.d. lagnir, dren, skólp og þak.
Ef um nýbyggingu er að ræða greiðir kaupandi skipulagsgjald, 0,3% af brunabótamáti, þegar það er lagt á.
Engin gögn fundust fyrir þessa eign

Sambærilegar eignir

Skoða eignina Hrafnaborg 9 C
Opið hús:07. des. kl 13:00-13:30
Skoða eignina Hrafnaborg 9 C
Hrafnaborg 9 C
190 Vogar
119.6 m2
Raðhús
423
626 þ.kr./m2
74.900.000 kr.
Skoða eignina Hrafnaborg 9 c
Skoða eignina Hrafnaborg 9 c
Hrafnaborg 9 c
190 Vogar
119.6 m2
Raðhús
423
626 þ.kr./m2
74.900.000 kr.
Skoða eignina Hrafnaborg 7b
Skoða eignina Hrafnaborg 7b
Hrafnaborg 7b
190 Vogar
123.6 m2
Raðhús
423
606 þ.kr./m2
74.900.000 kr.
Skoða eignina Hrafnaborg 1 - Íb. 204
Hrafnaborg 1 - Íb. 204
190 Vogar
129.5 m2
Fjölbýlishús
413
586 þ.kr./m2
75.900.000 kr.
Fasteignaleitin
Öflugur fasteignaleitarvefur með einföldu og notendavænu viðmóti sem býður upp á ítarlegar upplýsingar um fasteignir, þróun verðlags og fróðleik um fasteignamarkaðinn.
Hafðu samband
© Copyright 2025 - Fasteignaleitin