Fasteignaleitin
Skráð 10. sept. 2025

Kliftröð 4

Atvinnuhúsn.Suðurnes/Reykjanesbær/Ásbrú-262
567.2 m2
2 Baðherb.
Verð
120.000.000 kr.
Fermetraverð
211.566 kr./m2
Fasteignamat
52.800.000 kr.
Brunabótamat
164.650.000 kr.
Mynd af Marta Jónsdóttir
Marta Jónsdóttir
Lögfræðingur
Garður
Sérinng.
Fasteignanúmer
2321501
Húsgerð
Atvinnuhúsn.
Byggingarefni
Stál
Númer hæðar
01
Númer íbúðar
01
Vatnslagnir
Ekki vitað um vandamál
Raflagnir
Gott. Ekki vitað um vandamál.
Frárennslislagnir
Ekki vitað um vandamál
Gluggar / Gler
Gott
Þak
Þafnast skoðunar
Lóðarréttindi
Leigulóð
Upphitun
Gott. Endurnýjað
Inngangur
Sérinngangur
Sunna fasteignasala og Marta Jónsdóttir, lögfr. og lfs., kynna Kliftröð 4, 262 Reykjanesbæ. 

***SELJENDALÁN ER Í BOÐI***
**LÆKKAÐ VERÐ**


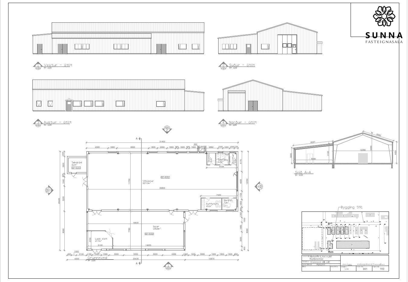
Um er að ræða 567,2 fm atvinnuhúsnæði á Ásbrú. Eignin skiptist í tvo sali; annar er 387,8 fm og hinn er 165 fm. Þá er tæknirými alls 14,4 fm. Geymsluloft er yfir stærri hlutanum og er óskráð en telur um 160 fm. 
Lofthæð í stærri salnum er ca. 6,35 m, og innkeyrsluhurð er 3,65 m á breidd og 3,8m á hæð.  
Lofthæð í minni salnum  er ca. 3,50 m, og innkeyrsluhurð er 3,60 m á breidd og  3m á hæð. 

Eignin var einangruð að utan og klædd með bárujárni/alúzink fyrir um 12-15 árum og er hún vel einangruð. Þak var yfirfarið fyrir nokkrum árum en þarfnast skoðunar. Þegar eldgosahrinan hófst á Reykjanesskaga var sett upp "loft í loft" kerfi í báða salina til að halda hita á húsinu. 
Eignin er i góðu standi og er með salernum og vöskum, lítilli skrifstofu/móttökusvæði og hentar því í margskonar rekstur. 

Brunabótamat er kr. 164.650.000.

Vinsamlegast bókið skoðun. 
Nánari upplýsingar veitir Marta Jónsdóttir, lögfr. og lfs. í síma 8633445 og netfanginu marta@sunnafast.is. 
Engin gögn fundust fyrir þessa eign

Myndir (7)

Sambærilegar eignir

Skoða eignina Kristnibraut 89
Bílskúr
Opið hús:18. mars kl 17:00-17:30
Skoða eignina Kristnibraut 89
Kristnibraut 89
113 Reykjavík
176 m2
Fjölbýlishús
413
647 þ.kr./m2
113.900.000 kr.
Skoða eignina Hnjúkamói 16 ÞAKÍBÚÐ 502 m bílskúr
Bílskúr
Hnjúkamói 16 ÞAKÍbúð 502 m bílskúr
815 Þorlákshöfn
157 m2
Fjölbýlishús
413
700 þ.kr./m2
109.900.000 kr.
Skoða eignina Hnjúkamói 16 ÞAKÍBÚÐ 501 m bílskúr
Bílskúr
Hnjúkamói 16 ÞAKÍbúð 501 m bílskúr
815 Þorlákshöfn
135.8 m2
Fjölbýlishús
413
736 þ.kr./m2
99.900.000 kr.
Skoða eignina Heinaberg 15, Laust til afhendingar
Bílskúr
Heinaberg 15, Laust til afhendingar
815 Þorlákshöfn
206.3 m2
Einbýlishús
513
470 þ.kr./m2
97.000.000 kr.
Fasteignaleitin
Öflugur fasteignaleitarvefur með einföldu og notendavænu viðmóti sem býður upp á ítarlegar upplýsingar um fasteignir, þróun verðlags og fróðleik um fasteignamarkaðinn.
Hafðu samband
© Copyright 2026 - Fasteignaleitin